Продается коттедж/дом: Энгельс, Энгельсский р-н
Коротко
- Номер объявления
- 32902481
- Дата подачи
- 16.01.2026
- Обновленно
- 14.02.2026
- Улица
- Энгельсский р-н
- В ипотеку
- 1
- Этажность
- 2
- Материал стен
- газоблок
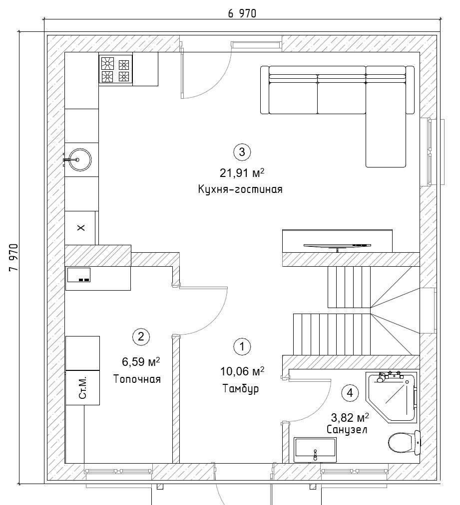
- Площадь общая
- 82
- Площадь земли
- 6
- Цена
- 6 111 000 руб.
- Просмотров
- 52
Контакты
Остерегайтесь мошенников! Не вносите предоплату за услуги риелторов до личного посещения и осмотра объекта недвижимости!
Описание
Уникальное предложение! Подходит по ипотеку 6%!! ПВ ВСЕГО 111 000 рублей!
Если вы мечтаете жить в экологически чистом районе со свежим воздухом, вдали от многоэтажек, шума и пыли, но при этом не желаете отказываться от инфраструктуры и цивилизации города, то этот вариант точно для вас!!!! Т.к. на автомобиле от коттеджного поселка до центра Энгельса или Саратова вы сможете добраться всего за 20 минут !!!
Для строительства и отделки дома используются современные высококачественные строительные и отделочные материалы:
свайно-ростверковый фундамент, очень надежный,
стены из газосиликатных блоков,
кровля - металлочерепица,
отделка облицовочным кирпичом или декоративной штукатуркой.
Дома сдаются без отделки, чистовую отделку можно заказать у застройщика и включить стоимость отделки в ипотеку.
Подходит под льготную ипотеку от 6%! Можно использовать материнский капитал.
Окажем помощь в оформлении ипотеки!
Цена 6 111 000 руб. /74 524 за м2
Если вы позвонили по объявлению и выяснили, что объекта не существует, либо с вас требуют предоплату за просмотр, оставьте жалобу!
Дополнительно
Дома/Коттеджи, Энгельс, Цена до 6 722 100, от 74 м2





Социальные кнопки