Продается коттедж/дом: Энгельс, Высоцкого улица д.7
Коротко
- Номер объявления
- 32962105
- Дата подачи
- 03.02.2026
- Комнат
- 6
- Обновленно
- 13.02.2026
- Улица
- Высоцкого улица
- Номер дома
- д.7
- В ипотеку
- 1
- Этажность
- 2
- Материал стен
- Монолит
- Площадь общая
- 227.8
- Площадь земли
- 7
- Сан. узел
- 2
- Год постройки
- 2021
- Цена
- 12 000 000 руб.
- Просмотров
- 32
Контакты
Остерегайтесь мошенников! Не вносите предоплату за услуги риелторов до личного посещения и осмотра объекта недвижимости!
Описание
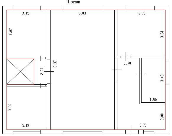
Продается жилой дом 227 кв.м. в поселке Генеральское (Энгельсский район). Дом построен в 2021 году, на первом этаже сделан качественный ремонт из современных материалов, меблирован, готов к проживанию. На цокольным этаже сделана пред чистовая отделка. Цокольный этаж не тёмный, имеются небольшие окна. На первом этаже расположена большая кухня-гостиная 47 кв.м. с витражными окнами в сад, три спальни 12, 11 и 13 кв.м., большая прихожая 13 кв.м., сан.узел 6,5 кв.м. с душевой кабиной. На цокольным этаже большой холл 47 кв.м. (планировался использоваться под игру на бильярде или домашний кинотеатр), три комнаты 18, 13 и 10 кв.м., сан. узел и котельная. Дом монолитный с наружным утеплением пенопласт под фасадной штукатуркой. Крыша металочерепица с утеплением минвата 250 мм. Электричество 15 кВт три фазы, Водоснабжение скважина (в доме), Канализация - септик.
село Генеральское - тихое место с развитой инфраструктурой для тех кто устал от городской суеты. Школа, детсад, магазины пятерочка, магнит. Два парка с детскими площадками. До обустроенного пляжа 5 минут неторопливым шагом. Для любителей охоты есть угодья. Любителям порыбачить два озера, пруд, река Волга. Охраняемая стоянка для катеров.
Документы готовы к продаже, один взрослый собственник.
Цена 12 000 000 руб. /52 678 за м2
Если вы позвонили по объявлению и выяснили, что объекта не существует, либо с вас требуют предоплату за просмотр, оставьте жалобу!
Дополнительно
6-комн. Дома/Коттеджи, Энгельс, Цена до 13 200 000, от 205 м2





Социальные кнопки