Продается 3-к квартира Саратов, Дачная улица 30А
Коротко
- Номер объявления
- 32825730
- Дата подачи
- 02.12.2025
- Комнат
- 3
- Обновленно
- 15.12.2025
- Тип
- Квартиры
- Улица
- Дачная улица
- Номер дома
- 30А
- Вариант
- продажа
- В ипотеку
- 1
- Этаж
- 3
- Этажность
- 10
- Материал стен
- Кирпич
- Планировка
- Улучшенная
- Балкон
- 2 лоджии
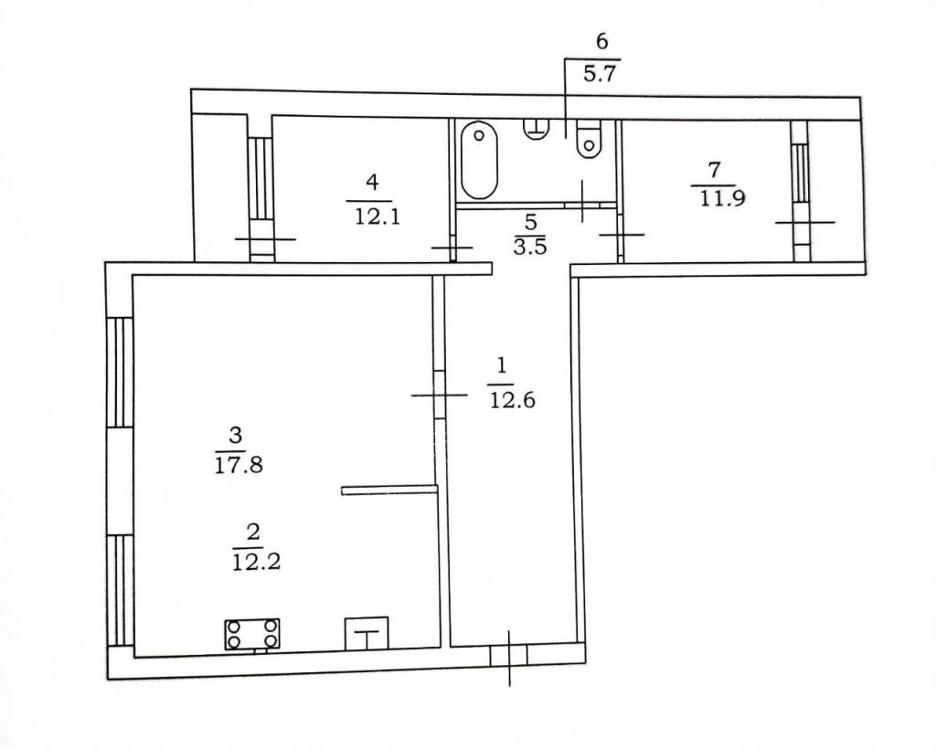
- Площадь общая
- 75.8
- Площадь жилая
- 41.8
- Площадь кухни
- 12.2
- Сан. узел
- Раздельный
- Состояние
- Хорошее
- Цена
- 7 750 000 руб.
- Просмотров
- 49
Контакты
Остерегайтесь мошенников! Не вносите предоплату за услуги риелторов до личного посещения и осмотра объекта недвижимости!
Описание
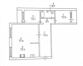
3-комнатная квартира 76 кв. м в Кировском районе, рядом с центром. Кирпичный дом 2002 года (серия М-25), удобный 3/10 этаж. Отличный вариант на вторичном рынке для семьи или покупки под инвестиции.
Основные характеристики:
• Изолированные комнаты 18 / 12 / 12 кв. м — удобная планировка.
• Большая кухня 12 кв. м.
• Просторная застеклённая лоджия.
• Раздельный санузел.
• Кирпичный дом — тёплый и тихий, хорошая шумоизоляция.
• Чистый подъезд, лифт, благоустроенный двор.
Локация
Кировский район — один из самых востребованных: рядом центр города, школы, детские сады, супермаркеты, остановки, поликлиника. Удобная транспортная развязка, быстрый выезд в любую часть города. Высокая ликвидность.
Документы
• 2 взрослых собственника
• Без обременений
• Без несовершеннолетних
• Подходит под ипотеку любого банка
Состояние
Жилое, требуется косметический ремонт — можно сделать интерьер под свой стиль без переплаты.
Звоните — отвечу на вопросы и организую просмотр!
Цена 7 750 000 руб. /102 243 за м2
Если вы позвонили по объявлению и выяснили, что объекта не существует, либо с вас требуют предоплату за просмотр, оставьте жалобу!
Дополнительно
Посмотреть все объявления (16): Продажа 3 комн. квартир Кировский, Саратов
3-комн. Квартиры, Кировский, Цена до 8 525 000, от 68 м2





Социальные кнопки