Продается 3-к квартира Саратов, Днепропетровская улица 4
Коротко
- Номер объявления
- 3736
- Дата подачи
- 16.02.2026
- Комнат
- 3
- Обновленно
- 13.03.2026
- Тип
- Квартиры
- Улица
- Днепропетровская улица
- Номер дома
- 4
- Вариант
- продажа
- В ипотеку
- 1
- Этаж
- 4
- Этажность
- 12
- Материал стен
- Панель
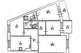
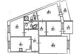
- Планировка
- 90
- Балкон
- 2 лоджии
- Площадь общая
- 67
- Площадь жилая
- 50
- Площадь кухни
- 12
- Цена
- 5 900 000 руб.
- Просмотров
- 23
Контакты
Остерегайтесь мошенников! Не вносите предоплату за услуги риелторов до личного посещения и осмотра объекта недвижимости!
Описание
Мечтаете о просторной квартире в динамично
развивающемся районе Саратова? Тогда этот вариант именно для Вас! Продаём 3к.кв. в Ленинском районе в полюбившемся многим микрорайоне Солнечный. Квартира расположена на 4 этаже 12-ти этажного панельного дома 1984 года постройки. Общая площадь 67 метров + две лоджии 12 и 6метров. Комнаты 18 метров, 16 метров, 16 метров, Просторная кухня 12 метров станет идеальным местом для семейных ужинов и праздников. В квартире выполнен косметический ремонт и она готова к немедленному заселению. Просто перевезите свои вещи и наслаждайтесь жизнью в новой квартире. Вокруг дома благоприятная экология и развитая инфраструктура: школа 55, медико-биологический лицей, два детсада, поликлиника детская и взрослая, рынок Топольчанский и рынок Солнечный, гипермаркет Лента, множество сетевых магазинов, кофеен, аптек, закрытый ледовый каток Кристаллик, дворец водных видов спорта. Покупка квартиры - это всегда выгодное вложение средств, а покупка квартиры в Солнечном с учётом перспектив развития района - это инвестиции в будущее Вашей семьи. Быстрый выход на сделку: один взрослый собственник, полная стоимость в договоре, чистая продажа без обременений и без долгов.
Цена 5 900 000 руб. /88 060 за м2
Если вы позвонили по объявлению и выяснили, что объекта не существует, либо с вас требуют предоплату за просмотр, оставьте жалобу!
Дополнительно
3-комн. Квартиры, Саратов, Цена до 6 490 000, от 60 м2





Социальные кнопки